SPICA

餐厅, Milan

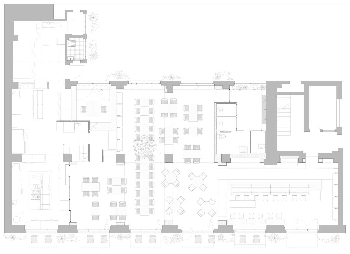
泛亚洲餐厅 Spica 项目,讲述了主厨 Ritu Dalmia 和 Viviana Varese 的环球之旅. 其概念将亚洲世界的灵感与20世纪米兰设计元素相结合,营造出充满活力、多元文化和色彩斑斓的氛围。我们的理念将 Ritu Dalmia 从印度出发,遍及亚洲,直至米兰,丰富了不同国家的烹饪传统、精神追求和好客之道之间的故事,通过室内装饰的语言呈现出来. 由此,当代世界主义文化与米兰设计大师的印记和美学影响在此相遇. 

参照米兰传统,我们将埃托雷·索特萨斯(Ettore Sottsass)的自由与激进设计与他对印度的深厚热情,与弗朗哥·阿尔比尼(Franco Albini)现代主义运动的优雅与严谨相结合. 两个截然不同的世界在空间中和谐对话,分别反映在室内建筑和家具中.
 

项目
Vudafieri-Saverino Partners, Tiziano Vudafieri and Claudio Saverino
设计团队
Anna Petrara, Thomas Pedrazzini
摄影
Nathalie Krag